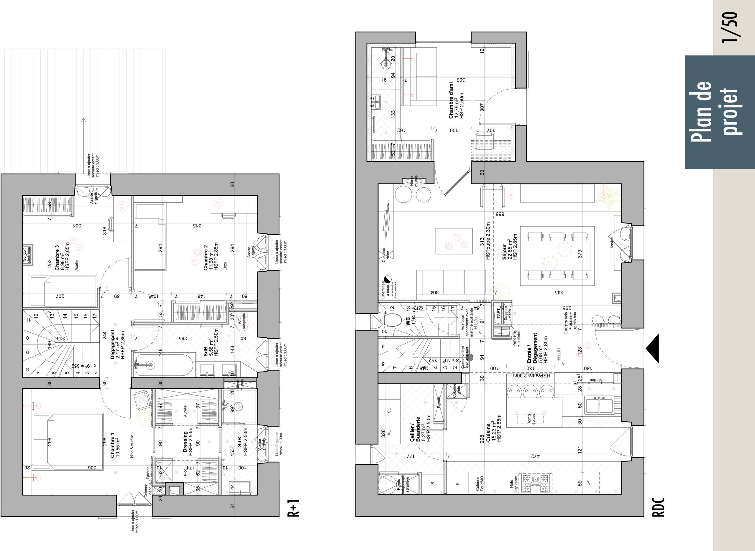
Projet Soie
Localisation
Salon-de-Provence
Mission
Conception
Surface
110 m²
Matériaux
Carreaux de ciment, parquet flottant, ferronneries, bois
Description
Ce petit Mazet provençal avait besoin d’un coup de jeune pour accueillir une jeune famille de 4 personnes au mode de vie résolument contemporain.
L’enveloppe de la bâtisse, au doux charme, a été conservée, ainsi que l’escalier existant.
Les espaces de vie ont été modifiés : les cloisons ont été déposées pour agrandir l’espace, et le mur porteur séparant l’ancienne cuisine du couloir d’entrée a également été démoli mais consolidé par une porte de type IPN.
L’entièreté des pièces a été rénovée : doublages en placo, nouvelles cloisons, nouvelles huisseries, nouveaux sols. Une décoration moderne a été pensée avec des jeux de verrières, de claustras et de textures.
L’étage n’est pas en reste et abrite deux chambres, une salle de bain / WC et une suite parentale. Ces espaces ont également été repensés et remis au goût du jour.
