Projet Klein
Localisation
Velaux
Mission
Conception, projection et réalisation
Durée
1 mois de chantier
Surface
30 m²
Matériaux
Composite stratifié bleu Cosmique, composite stratifié Chêne clair, composite stratifié blanc
Description
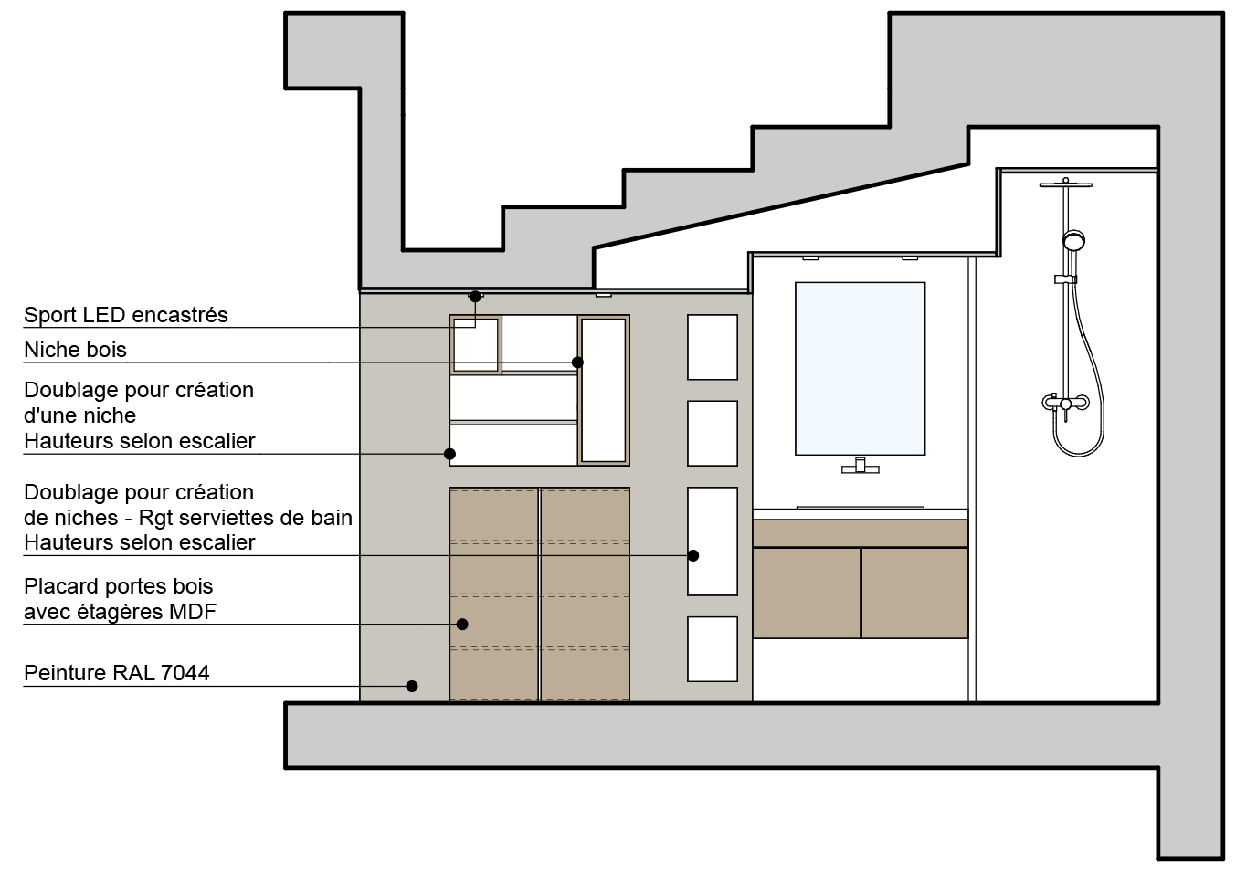
La difficulté de ce projet résidait dans la volonté du client d’aménager un accès au sous-sol de la maison depuis la chambre, de masquer l’édicule d’accès, d’avoir un dressing aux dimensions confortables et d’habiller le passage de l’espace nuit vers la salle de bain.
Il a alors été dessiné et conçu une « boîte bleue » menuisée. Cet élément aux multiples rangements offre un dressing complet, éclairé par 3 spots encastrés, intégrant l’édicule d’accès au sous-sol.
Au centre, une trappe vitrée montée sur vérins permet d’accéder au sous-sol de manière sécurisée.
L’accès à la salle de bain n’offre maintenant plus de vue sur le dessous de l’escalier mais donne accès à divers rangements, niches et placards, aux matières et formes dynamiques.
Depuis la porte d’entrée de la suite, cette « boîte bleue » fonctionnelle séquence la déambulation à travers la pièce et structure l’espace.
